top of page
Inyecta Financiera
Año
Ubicación
San Luis Potosí, S.L.P., México.
Categoría
Remodelación
Responsable
Diego Ponce Martell
Presentado por
/
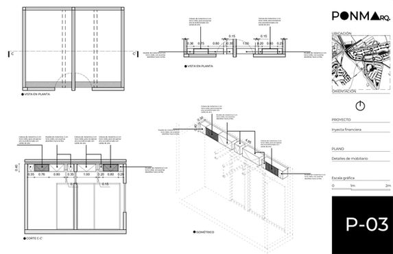
En este proyecto transformamos un espacio afectado por la exposición poco estética de aires acondicionados. Diseñamos una solución en tablaroca y mobiliario de madera que, además de cubrirlos, se integró de manera armónica con el estilo existente de las oficinas, aportando orden, estética y funcionalidad al ambiente de trabajo.

bottom of page











